Kōra

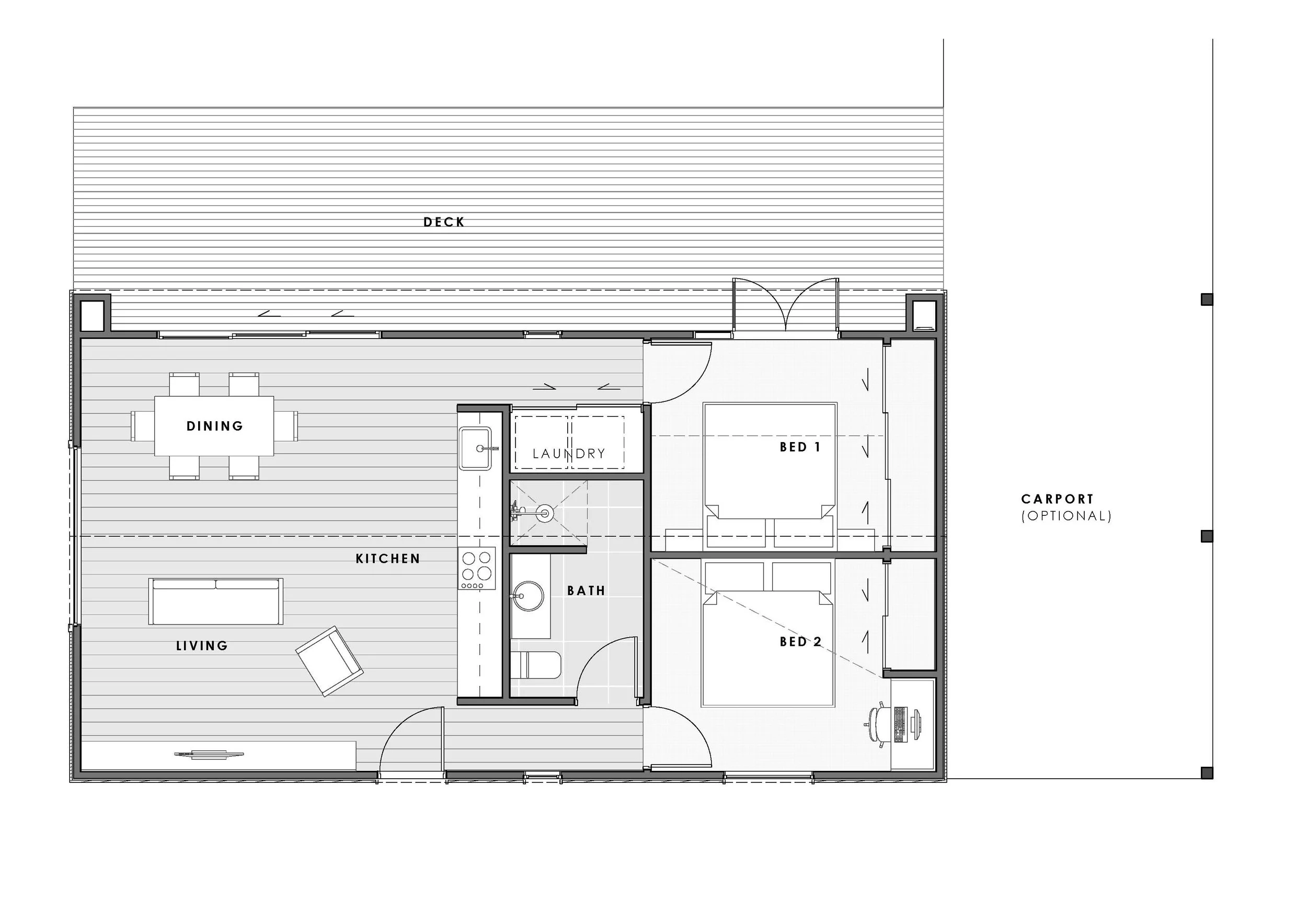
Introducing the Origin Kōra 70m² Minor Dwelling—a refined blend of classic charm and contemporary design. With its timeless gable roof and thoughtfully considered layout, this compact home offers two generous bedrooms and a light-filled open-plan living space that brings the kitchen, dining, and lounge together in one inviting, functional hub. It’s the perfect solution for a rental, guest house, or additional family space.

Every element can be customised to suit your style, from cladding to colour. And thanks to recent government changes, building minor dwellings up to 70m² has never been more accessible—no building consent required if key criteria are met. As always, local council rules still apply, but we’ll guide you through it. If you’re looking to add a beautifully designed, practical space to your property, the Origin Kōra 70m² Minor Dwelling makes it simple, stylish, and stress-free.

  • 70m2 compact floor plan. Optional Carport or Garage.

  • Architecturally designed by Origin Architecture Ltd.

  • 2 Bedrooms with wardrobes.

  • Generous 2.7m high ceiling.

  • Open plan living and kitchen.

  • Large sliding doors to connect with outdoors.

  • Modern layout with large bathroom.

  • Can be customised to suit personal requirements. (cladding preferences and interior finishes)

  • Origin Low Energy construction option available.

Estimated build price from: $245,000 ex GST*

*Note this is an estimated base build price only, excludes any specific site works, foundations, interior fit out selections, and landscaping/ decking and swimming pools. Architectural, consultant and council fees are additional.

Please note: plans and materials are subject to change during the detailed design process.

For low energy design add additional estimated 10-15% from conventional build

All images, designs and layouts are copy right to Origin architecture Ltd ©

  • Stage 1- Feasibility

    In this stage we get the ball rolling on your project.

    • Initial meeting to discuss your brief and budget.

    • Investigation into your site.

    • Identify site constraints and council limitations.

    • We place the building platform on the site to ensure it fits.

    • We get a better understanding of consents and consultants required.

  • Stage 2- Developed Design

    This is the fun part where we start to adjust the design to suit your needs.

    • Plan adjustments made

    • Introduction to our in house interior designer for interior review.

    • Claddings confirmed

    • Overall design agreed.

    • Consents and consultants confirmed.

    • Pricing updated with your Origin Home Builder to ensure budget is being met.

  • Stage 3 Detailed Design

    Upon sign off of your developed design we move onto preparing the detailed design ready for council consent approval.

    • Consent documentation

    • Upon consent approval your build can commence.

    • Your Origin Home Builder will provide you with an updated quote for the project and contract.

  • Interior Design

    An Origin interior designer will work with you throughout the project to offer a bespoke service based on your needs, this includes:

    • Hard and soft furnish scheduling.

    • Kitchen, scullery, bathroom, laundry design.

    • Wardrobe and storage design.

    • Finishes selection.

  • We have partnered with our trusted builders to offer a fully integrated design and build solution nationwide. This approach brings several benefits:

    • Cost control from the outset, with fixed-price architectural and construction packages

    • Early builder involvement, ensuring feasibility and helping reduce unexpected costs

    • Streamlined communication between design and build teams

    • Faster delivery, thanks to an integrated process

  • We provide a full interior design service through Origin Interiors. This allows us to finalise finishes, fittings, and cabinetry during the design phase—ensuring a cohesive outcome and enabling more accurate pricing, which helps avoid scope creep or unnecessary allowances. We also offer competitive pricing for cabinetry and appliances, which can deliver meaningful cost savings.

  • All of our designs have a standard specification which can be upgraded depending on your overall outcome. Contact us today to find out more,

  • We can build nationwide, contact us today for a complimentary review of your site.